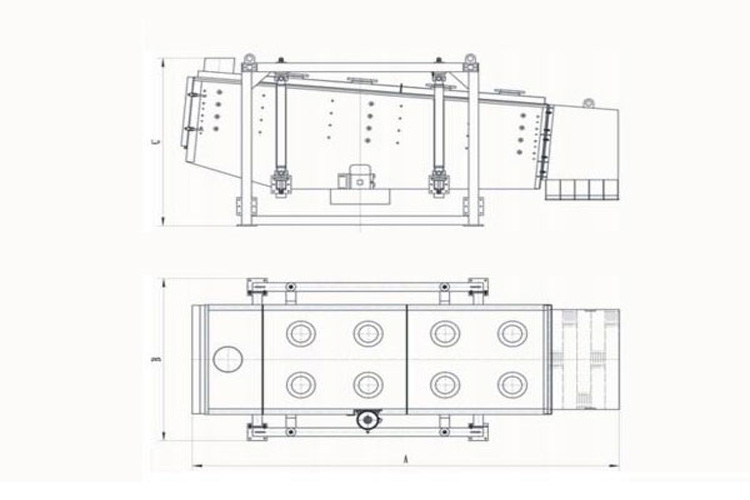
方形箱式搖擺篩結構圖
搖擺篩被眾多用戶所熟知,其篩分設備因為產量大,篩分精度高,使用壽命長等特點,在各行業應用廣泛,比較擅長篩分中細精度的物料,常見篩分70目-180目的粉末或者顆粒類物料。方形箱式搖擺篩更能滿足用戶的篩分產量要求,下面來說明一下方形箱式搖擺篩的結構。
方形箱式搖擺篩由篩箱、篩框、篩網、清網裝置、支撐框架、驅動電機、傳動皮帶、激振器、搖擺臂(萬向軸)、進出料口、吊耳、觀察口等結構組成,其篩分動作類似人工篩分動作,可以在篩分過程中保留物料的物理性狀,而且因為不具備強烈振動特性,區別于常見的振動篩,零部件不在強振動環境下工作,所以相對使用壽命較長。
方形箱式搖擺篩結構圖如圖,篩箱為全封閉狀態,全程篩分作業粉塵不泄露,符合現在環保生產需求標準。根據用戶的具體篩分要求,在篩網清理上可以加裝多種設備,比如旋轉刷、超聲波發生器、彈跳球等。篩網材質有多種可選,有編織金屬絲、聚氨酯曬板、沖壓孔式篩網,其層數可以達到10層以上,來篩分出多種粒度等級的物料(篩網層數過多會影響篩分效率,一般控制在6層以下,特殊要求除外)。
河南圓振機械是一家方形箱式搖擺篩生產廠家,嚴把質量關,幫助解決用戶各種篩分難題為己任,如果您有相關篩分需求和問題,敬請咨詢,將竭誠為您服務。

- 上一篇:超聲波振動篩是什么原理呢?
- 下一篇:小型振動篩沙機怎么選擇篩分設備
專注振動領域 多年行業經驗
